연 면 적
113.16m²(34.23평)
1 층 면 적
99.72m²(30.17평)
포 치 면 적
13.44m²(4.07평)
건 축 구 조
경량목구조
품질 1위, 하우스톡 직영공사 현장을 자신있게 보여드립니다.
연 면 적
113.16m²(34.23평)
1 층 면 적
99.72m²(30.17평)
포 치 면 적
13.44m²(4.07평)
건 축 구 조
경량목구조
외 장 재
세라믹사이딩, 파벽돌
지 붕 재
점토기와
창 호 재
독일식 시스템 창호
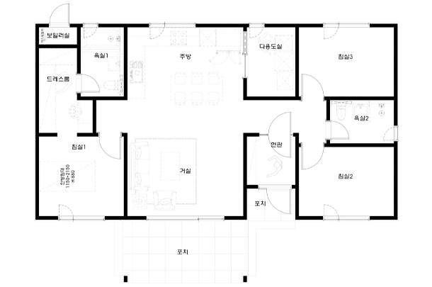
Floor Plan
01
기초
02
골조
03
창호벤트
04
전기
05
설비
06
방수
07
단열
08
석고내장
09
인테리어
10
외장
11
지붕
12
기타
13
완공
2026.4.7