house talk
건축문의 1588-9704

경남 진주시 충무공동

Concept

Summary

연 면 적

154.2m²(46.65평)

1 층 면 적

84.75m²(25.64평)

2 층 면 적

57.45m²(17.38평)

포 치 면 적

12m²(3.63평)

건 축 구 조

경량목구조

외 장 재

4

지 붕 재

평기와

내 장 재

실크벽지

창 호 재

독일식 시스템창호

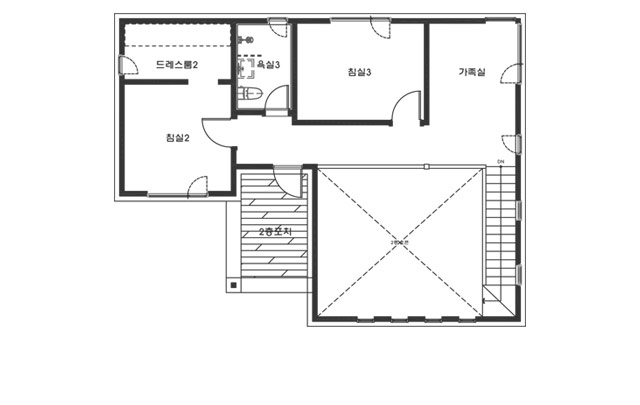
Floor Plan

http://house-talk.co.kr/image/image_design_drawing_image_1/design_drawing_image_1_1758010003.jpg

Exterior

Interior

경남 진주시 충무공동

이 주택으로 상담하기

*개인정보 수집 및 이용에 대한 동의