house talk
건축문의 1588-9704

전통과 현대를 아우르는 단독주택 설계 아이디어

HT-2601-27M

Concept

전통과 현대의 조화와 미래를 생각하는 아이디어를 담은 단층 단독주택 설계입니다. 외관은 화이트 컬러를 기본으로 석재데크와 징크 지붕이 세련된 조화를 이루는 모던 스타일을 보여주고 있습니다. 모임지붕과 한옥의 라인을 레이어링 하여 단순한 파사드에서 오는 지루함을 없애고 마당으로 연결되는 데크 테라스로 여유롭고 아늑한 공간을 만들었습니다.

Summary

연 면 적

91.2m²(27.59평)

1 층 면 적

72.76m²(22.01평)

포 치 면 적

18.44m²(5.58평)

건 축 구 조

경량목구조

외 장 재

스타코플렉스, 파벽돌

지 붕 재

칼라강판 (아스팔트슁글)

내 장 재

고객 맞춤형 디자인

창 호 재

독일식 시스템 창호

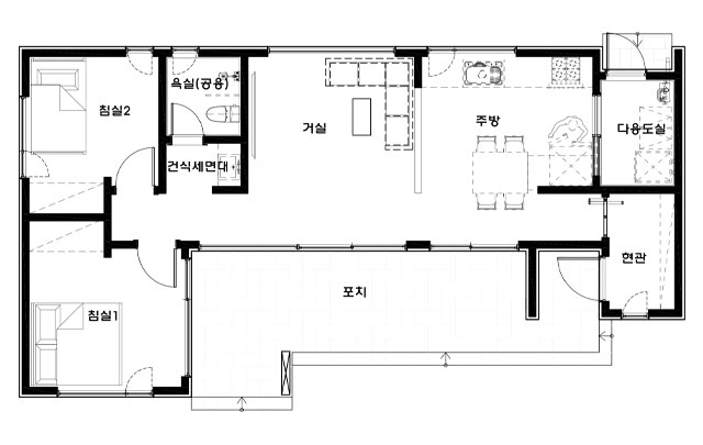
Floor Plan

Detail

HT-2601-27M

이 주택으로 상담하기

*개인정보 수집 및 이용에 대한 동의