house talk
건축문의 1588-9704

품질 1위, 하우스톡 직영공사 현장을 자신있게 보여드립니다.

경남 하동군 탑리

Summary

연 면 적

131.5m²(39.78평)

1 층 면 적

127.32m²(38.51평)

포 치 면 적

4.18m²(1.26평)

건 축 구 조

경량목구조

외 장 재

스타코플렉스, 파벽돌

지 붕 재

점토기와

창 호 재

독일식 시스템 창호

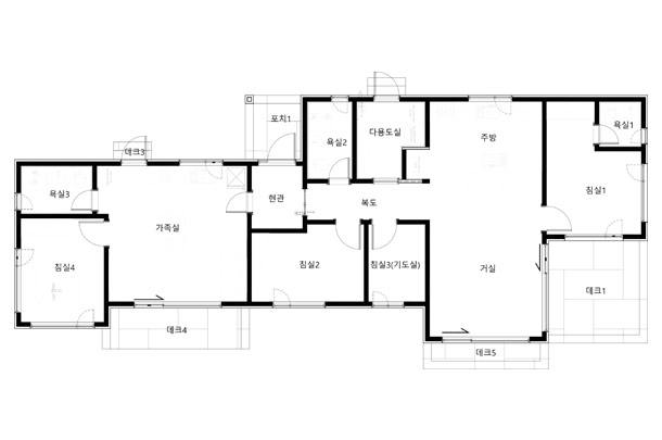
Floor Plan

Daily Progress

33%

01

기초

02

골조

03

창호벤트

04

전기

05

설비

06

방수

07

단열

08

석고내장

09

인테리어

10

외장

11

지붕

12

기타

13

완공

01. 기초공사

2025.10.27

2025.10.30

02. 골조공사

2025.11.10

03. 창호/벤트

04. 전기공사

05. 설비공사

06. 방수공사

07. 단열공사

08. 석고/내장

09. 인테리어

10. 외장공사

11. 지붕공사

12. 기타공사

13. 준공청소/완공